
店舗で繰り返すカビ問題
以前から営業されている店舗で、何度か壁紙を貼り替えても時間が経つとカビが発生してしまうという相談を受けました。
過去にも何度か壁紙を貼り替えているそうですが、しばらくすると同じようにカビが出てしまうとのことです。
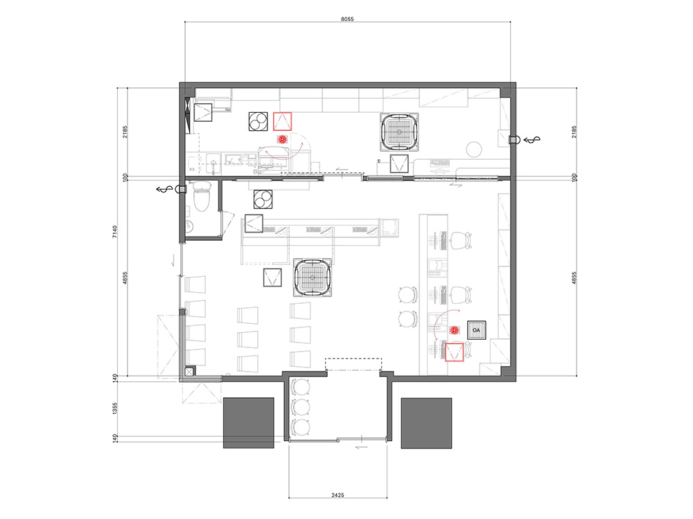
現地を確認すると、店内の壁は全体的にカビが発生しており、原因を考えながら改善方法を検討する必要がありました。
カビの原因を想定する為、工務店さんと設備屋さんにも現地を確認してもらい、いくつかの原因の可能性を考えてみました。
現地を確認してもらうと、いくつかの可能性が考えられました。例えば、
・天井内と室内の温度差による結露
・外部と室内の温度差による結露
・壁の断熱不足
・換気不足
・空調の影響
など、いくつかの条件が重なっている可能性があります。それぞれの対処法や予算、工期など含めて何度か打合せ。
今回の工事は、店舗営業を止めることができないというのが最大の条件。長期間の休業はできない、平日は大きな音を出せない、工事は土日のみ、工事途中の状態では営業できない、という制約がありました。そのため、工務店さんと相談しながら土日のみで行える工事内容と工程を組んでもらい、約3週間かけて工事を行うことに。
工事開始
そして工事が始まり、まずは壁紙のメクリ作業から始まりました。
外壁に接するところは所々カビが見受けられました。今回は、カビ止めシーラーと防カビのクロスで対応することに。
意外とカビが特にひどかったのは、外壁ではなく室内の間仕切り壁でした。( ゚Д゚)
この部分については比較的原因が想像しやすく、エアコンの吹き出し口が壁にかなり近い位置にありました。冷たい空気が壁に直接当たり続けることで壁の表面温度が下がり、結露が発生していた可能性があります。壁を解体してみるとスタッドに錆が見られ、特に床側のランナーの内部がひどく錆びていました。状況から推測すると、壁内部で発生した結露の水滴がスタッドを伝って下に流れ、ランナーの中に溜まっていたのではないかと思われます。さらにその付近にはCD管(電気配線用の管)も通っており、水が伝いやすい条件が重なっていた可能性もあります。電気配線も近くを通っていたため、漏電などのトラブルにならなかったのは不幸中の幸いでした。現在は、このエアコンの吹き出し口は閉じて運転しています。
この壁の向こう側が小さな部屋で空調が効きすぎている可能性があるので、ボードの貼替えついでに断熱材を入れています。
また、天井内の空気が滞留しないように天井内には換気扇を設置ています。
工事後は壁紙も新しくなり、室内も明るくすっきりしました。ただ、今回のようなカビ問題はハッキリとした原因は分かっておらず、改善計画も店舗条件に合うもので選んでいるので100%大丈夫とは言えません。と10回ぐらいクライアントには伝えさせていただきました。(・.・;)
出来る限りのことはさせていただいたつもりです。あとは、カビが再発しないことを願うばかりです。また今後も観察していきたいと思います。
【その他のメモ書き】












